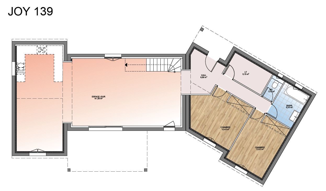
Maison Joy
3 ou 4 chambres
Surface habitable :
113 à 158 m (3)
Garage :
Sans
Type de maison :
A étage partiel
Visite virtuelle
*Champs obligatoires
Merci de recopier le code ci-dessous :
VILLAS PRISME est un constructeur de maison exerçant depuis 1972 en région PACA, les Alpes de Haute Provence (04), les Bouches du Rhône (13), le Var (83) et le Vaucluse (84).
A propos
En savoir plus
Nos implantations
Nos maisons