Maison Diana
Nombre de chambres :
3 à 4 chambres
Surface habitable :
Entre 127 et 136 M²
Garage :
Sans
Type de maison :
Avec étage
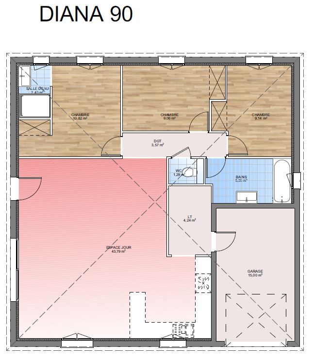
Maison Diana
Nombre de chambres :
3 à 4 chambres
Surface habitable :
Entre 127 et 136 M²
Garage :
Sans
Type de maison :
Avec étage