Annonce
Prix :
395 000 €
Ville : TOULON
(83000) - Var
Superficie : 291 m²
Nombre de pièces : 5
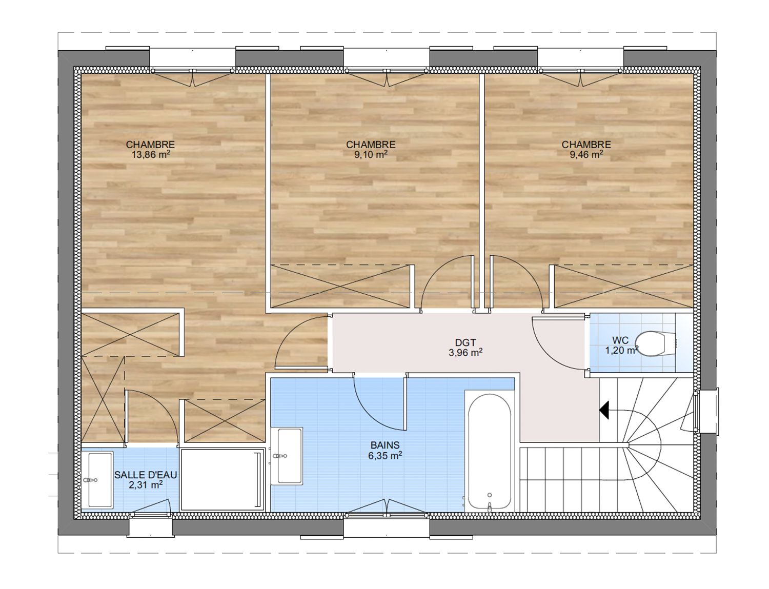
Nombre de chambres : 3
Salle(s) de bain : 2
Mis à jour le : 13/12/2025
Réf. annonce : 487510
Descriptif de l'annonce
A TOULON sur un terrain de 291 m², VILLAS PRISME vous propose de réaliser votre projet de construction de maison individuelle d'une surface de 90 m² habitables avec 3 chambres. Garage non compris.
Avec VILLAS PRISME, vous pouvez personnaliser votre projet de maison sur mesure :
- Plan et distribution
- Système de chauffage au choix
- Prestations et équipements selon vos souhaits : carrelages, faïence, menuiseries, salles de bains...
- Mode constructif et matériaux selon les normes en vigueur
Informations du terrain :
TOULON Est
Quartier mitoyen à La Valette
Terrain plat de moins de 300 m2
Idéalement situé dans un quartier calme et résidentiel
Idéal pour réalisation d’une villa avec 3 ou 4 chambres à l’étage
A saisir 205000 euros
Demandez une étude gratuite et personnalisée de votre projet de construction !