Annonce
Prix :
302 299 €
Ville : SENAS
(13560) - Bouches-du-Rhône
Superficie : 449 m²
Nombre de pièces : 5
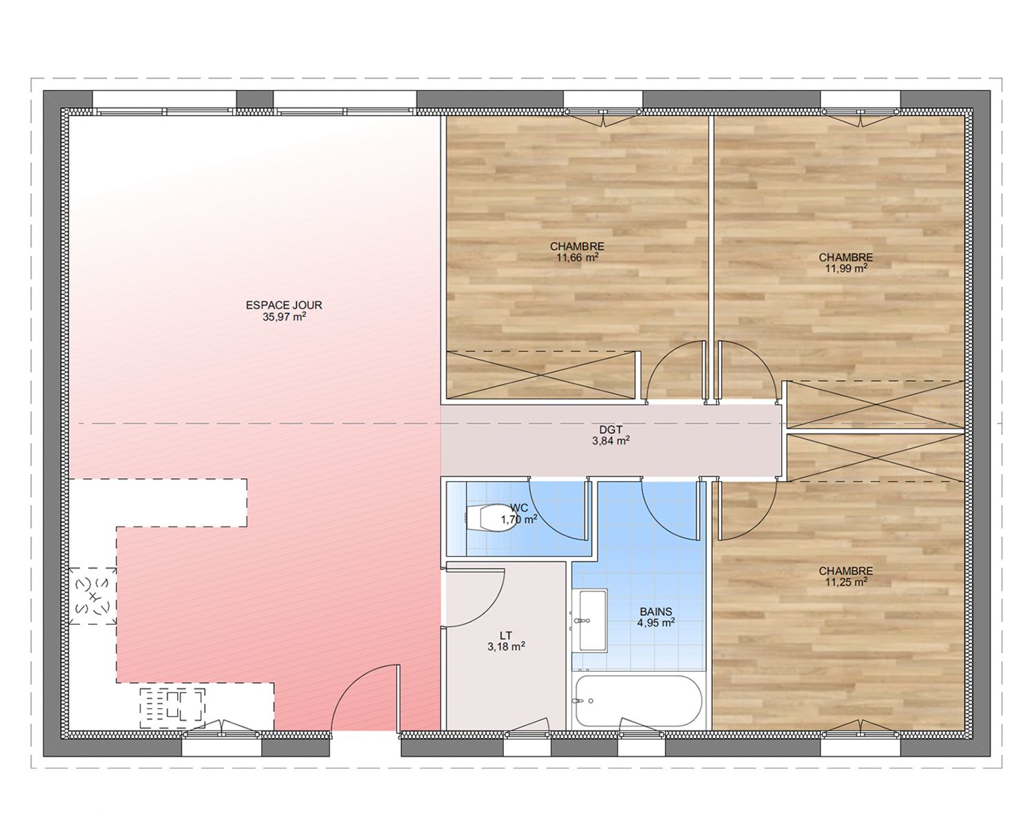
Nombre de chambres : 3
Salle(s) de bain : 1
Mis à jour le : 02/02/2026
Réf. annonce : 502621
Descriptif de l'annonce
A SENAS sur un terrain de 449 m², VILLAS PRISME vous propose de réaliser votre projet de construction de maison individuelle d'une surface de 85 m² habitables avec 3 chambres.
Avec VILLAS PRISME, vous pouvez personnaliser votre projet de maison sur mesure :
- Plan et distribution
- Système de chauffage au choix
- Prestations et équipements selon vos souhaits : carrelages, faïence, menuiseries, salles de bains...
- Mode constructif et matériaux selon les normes en vigueur
Informations du terrain : plat - viabilisé - très ensoleillé - quartier calme et demandé
Demandez une étude gratuite et personnalisée de votre projet de construction !