Annonce
Prix :
366 660 €
Ville : SALON-DE-PROVENCE
(13300) - Bouches-du-Rhône
Superficie : 510 m²
Nombre de pièces : 5
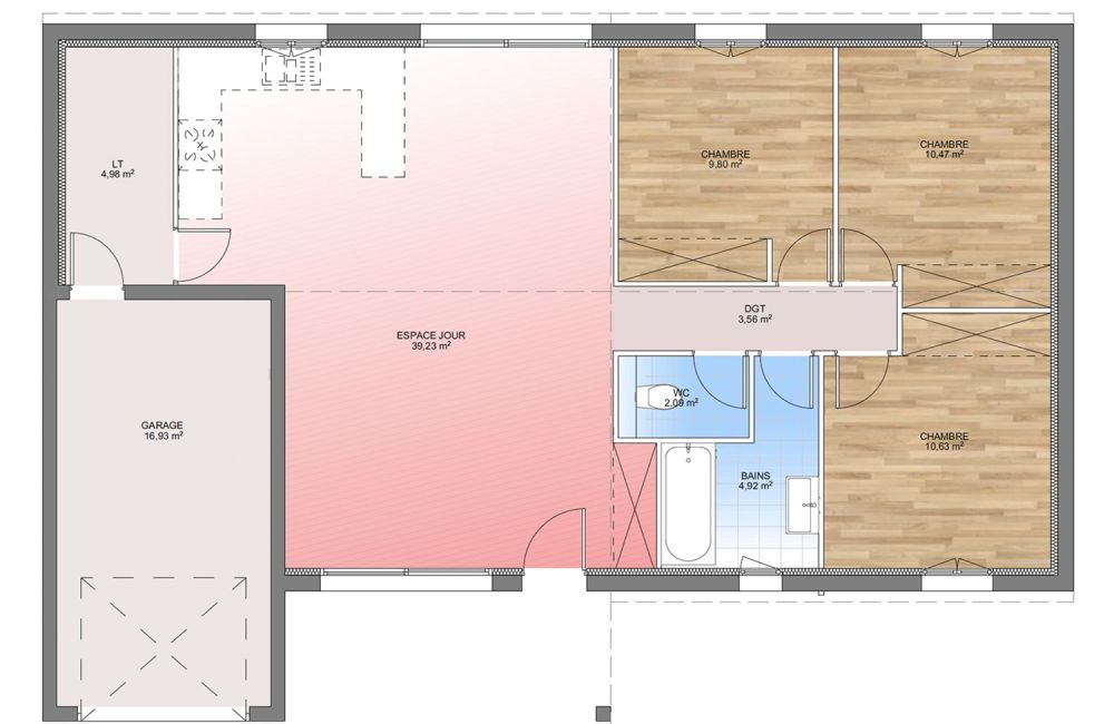
Nombre de chambres : 3
Salle(s) de bain : 1
Mis à jour le : 26/10/2025
Réf. annonce : 377924
Descriptif de l'annonce
A SALON-DE-PROVENCE sur un terrain de 510 m², VILLAS PRISME vous propose de réaliser votre projet de construction de maison individuelle d'une surface de 85 m² habitables avec 3 chambres.
Avec VILLAS PRISME, vous pouvez personnaliser votre projet de maison sur mesure :
- Plan et distribution
- Système de chauffage au choix
- Prestations et équipements selon vos souhaits : carrelages, faïence, menuiseries, salles de bains...
- Mode constructif et matériaux selon les normes en vigueur
Informations du terrain : SALON SUD : PLAT - ENSOLEILLE - CALME - QUARTIER RESIDENTIEL - VIABILISE
Demandez une étude gratuite et personnalisée de votre projet de construction !