Annonce
Prix :
399 900 €
Ville : SAIGNON
(84400) - Vaucluse
Superficie : 800 m²
Nombre de pièces : 5
Nombre de chambres : 3
Salle(s) de bain : 1
Mis à jour le : 09/03/2026
Réf. annonce : 503918
Descriptif de l'annonce
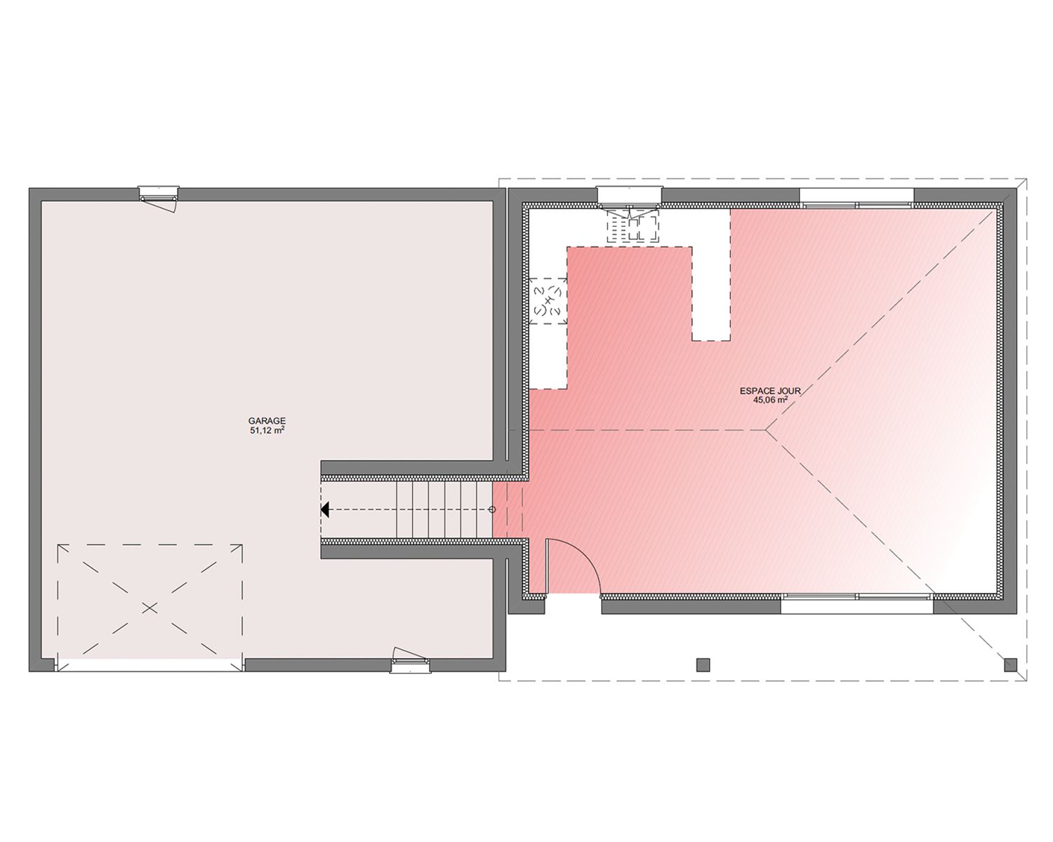
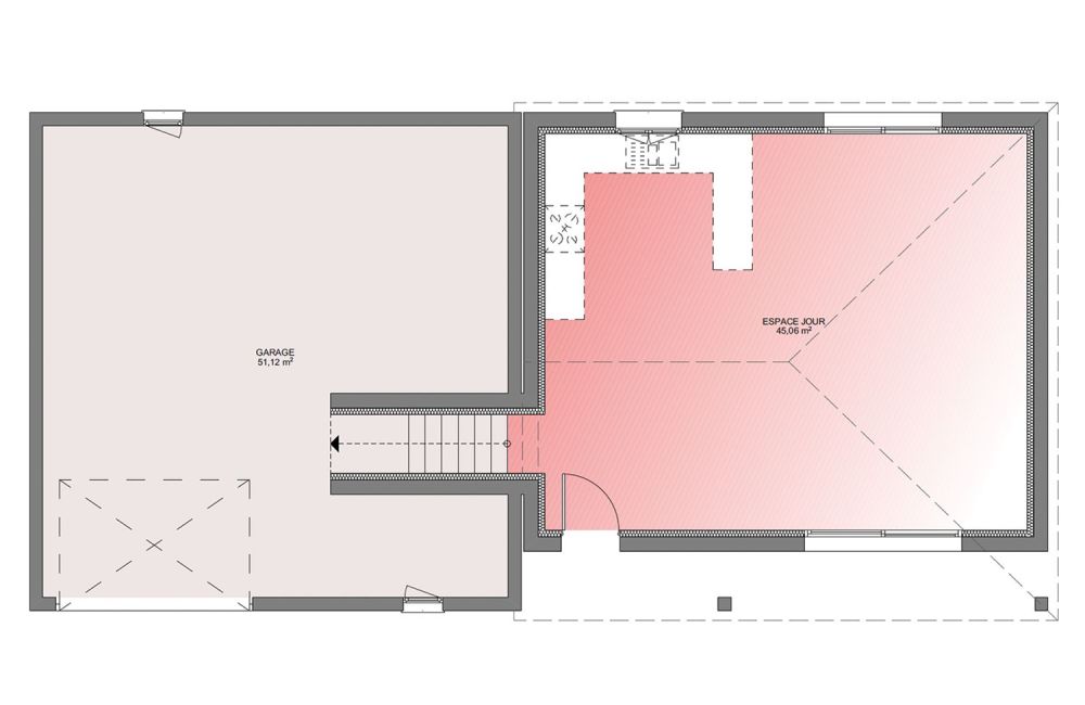
A SAIGNON sur un terrain de 800 m², VILLAS PRISME vous propose de réaliser votre projet de construction de maison individuelle d'une surface de 95 m² habitables avec 3 chambres.
Avec VILLAS PRISME, vous pouvez personnaliser votre projet de maison sur mesure :
- Plan et distribution
- Système de chauffage au choix
- Prestations et équipements selon vos souhaits : carrelages, faïence, menuiseries, salles de bains...
- Mode constructif et matériaux selon les normes en vigueur
Informations du terrain : terrain plat offrant une belle vue, très bien exposé à proximité d'Apt
Demandez une étude gratuite et personnalisée de votre projet de construction !