Annonce
Prix :
477 413 €
Ville : ROQUEVAIRE
(13360) - Bouches-du-Rhône
Superficie : 890 m²
Nombre de pièces : 6
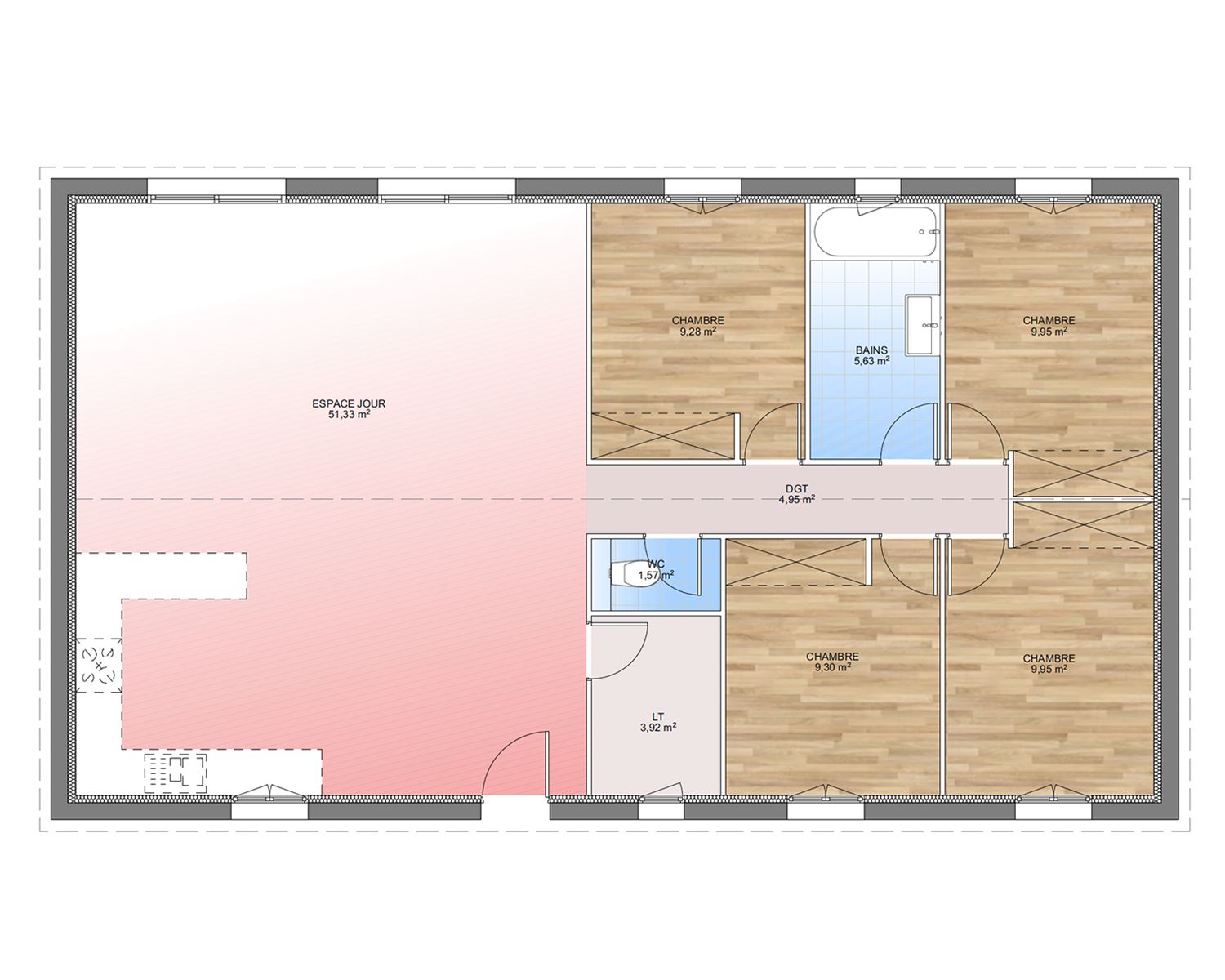
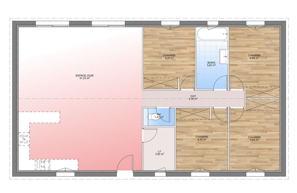
Nombre de chambres : 4
Salle(s) de bain : 1
Mis à jour le : 02/02/2026
Réf. annonce : 503637
Descriptif de l'annonce
A ROQUEVAIRE sur un terrain de 890 m², VILLAS PRISME vous propose de réaliser votre projet de construction de maison individuelle d'une surface de 105 m² habitables avec 4 chambres.
PRIX: 477413€
CONTACT: A.QUESADA: 06.63.02.26.17
Avec VILLAS PRISME, vous pouvez personnaliser votre projet de maison sur mesure :
- Plan et distribution
- Système de chauffage au choix
- Prestations et équipements selon vos souhaits : carrelages, faïence, menuiseries, salles de bains...
- Mode constructif et matériaux selon les normes en vigueur
Demandez une étude gratuite et personnalisée de votre projet de construction !