Annonce
Prix :
443 150 €
Ville : PELISSANNE
(13330) - Bouches-du-Rhône
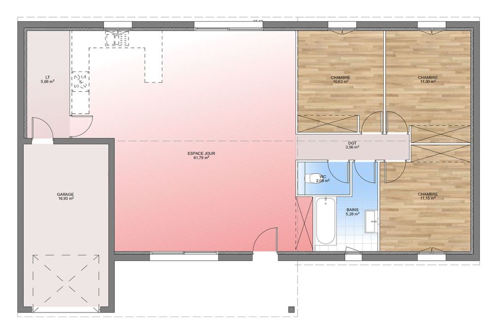
Superficie : 736 m²
Nombre de pièces : 5
Nombre de chambres : 3
Salle(s) de bain : 1
Mis à jour le : 26/10/2025
Réf. annonce : 429118
Descriptif de l'annonce
A PELISSANNE sur un terrain de 736 m², VILLAS PRISME vous propose de réaliser votre projet de construction de maison individuelle d'une surface de 105 m² habitables avec 3 chambres.
Avec VILLAS PRISME, vous pouvez personnaliser votre projet de maison sur mesure :
- Plan et distribution
- Système de chauffage au choix
- Prestations et équipements selon vos souhaits : carrelages, faïence, menuiseries, salles de bains...
- Mode constructif et matériaux selon les normes en vigueur
Informations du terrain : Calme - Viabilisé - Secteur très demandé -
Demandez une étude gratuite et personnalisée de votre projet de construction !