Annonce
Prix :
295 000 €
Ville : ORAISON
(04700) - Alpes-de-Haute-Provence
Superficie : 501 m²
Nombre de pièces : 5
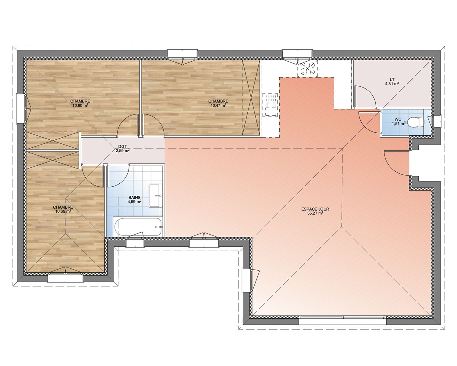
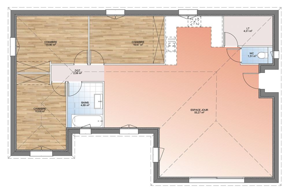
Nombre de chambres : 3
Salle(s) de bain : 1
Mis à jour le : 28/03/2026
Réf. annonce : 492173
Descriptif de l'annonce
A ORAISON sur un terrain de 501 m², VILLAS PRISME vous propose de réaliser votre projet de construction de maison individuelle d'une surface de 100 m² habitables avec 3 chambres.
Avec VILLAS PRISME, vous pouvez personnaliser votre projet de maison sur mesure :
- Plan et distribution
- Système de chauffage au choix
- Prestations et équipements selon vos souhaits : carrelages, faïence, menuiseries, salles de bains...
- Mode constructif et matériaux selon les normes en vigueur
Informations du terrain : A deux pas du village et des commodités.
Terrain plat et viabilisé de 501 m² bénéficiant d’une parfaite exposition.
Vue dégagée et peu de vis-à-vis.
Votre projet : Une maison sur mesure, construction brique et isolation renforcée RE2020.
Assurances et garanties du constructeur (RC professionnelle, décennale, dommage ouvrage, garantie de remboursement de l'acompte, livraison à prix et délai convenu).
Contact : Pierre JUHAN, 07.43.67.51.05
Demandez une étude gratuite et personnalisée de votre projet de construction !