Annonce
Prix :
524 000 €
Ville : MARTIGUES
(13500) - Bouches-du-Rhône
Superficie : 293 m²
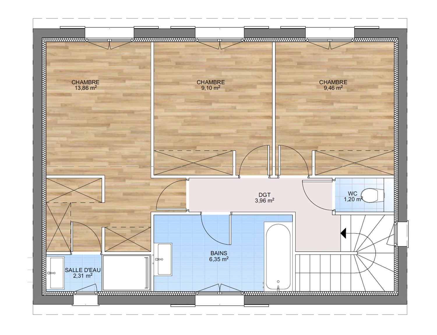
Nombre de pièces : 5
Nombre de chambres : 3
Salle(s) de bain : 2
Mis à jour le : 27/12/2025
Réf. annonce : 497456
Descriptif de l'annonce
A MARTIGUES CARRO sur un terrain de 293 m², VILLAS PRISME vous propose de réaliser votre projet de construction de maison individuelle d'une surface de 95 m² habitables avec 3 chambres.
Avec VILLAS PRISME, vous pouvez personnaliser votre projet de maison sur mesure :
- Plan et distribution
- Système de chauffage au choix
- Prestations et équipements selon vos souhaits : carrelages, faïence, menuiseries, salles de bains...
- Mode constructif et matériaux selon les normes en vigueur
Informations du terrain : - Plein Sud
- Calme
- Proche de la plage
Contacter PM. 06.09.51.92.15
Demandez une étude gratuite et personnalisée de votre projet de construction !