Annonce
Prix :
563 000 €
Ville : MARSEILLE 12E
(13012) - Bouches-du-Rhône
Superficie : 381 m²
Nombre de pièces : 5
Nombre de chambres : 3
Salle(s) de bain : 2
Mis à jour le : 28/03/2026
Réf. annonce : 515939
Descriptif de l'annonce
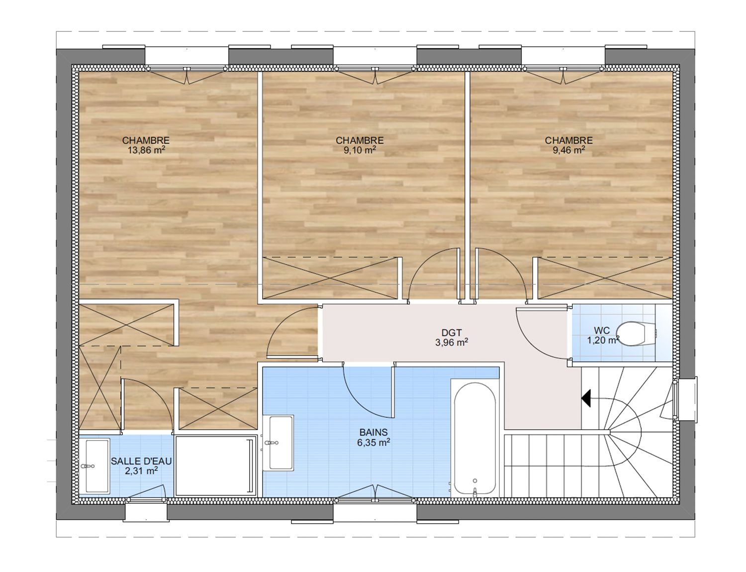
A MARSEILLE 12E les caillols sur un terrain de 381 m², VILLAS PRISME vous propose de réaliser votre projet de construction de maison individuelle d'une surface de 95 m² habitables avec 3 chambres. Contacter Mr Mosse au 06 09 51 92 15.
Avec VILLAS PRISME, vous pouvez personnaliser votre projet de maison sur mesure :
- Plan et distribution
- Système de chauffage au choix
- Prestations et équipements selon vos souhaits : carrelages, faïence, menuiseries, salles de bains...
- Mode constructif et matériaux selon les normes en vigueur
Informations du terrain : plat clôturer, plein sud calme proche collèges et commerce.
Demandez une étude gratuite et personnalisée de votre projet de construction !