Annonce
Prix :
430 000 €
Ville : LE THORONET
(83340) - Var
Superficie : 1500 m²
Nombre de pièces : 6
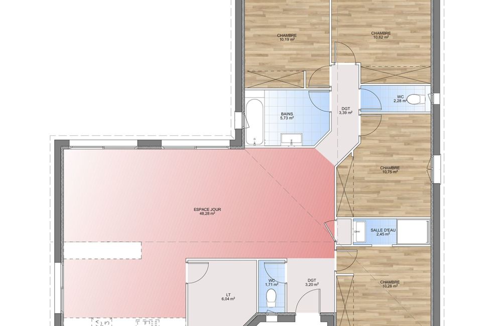
Nombre de chambres : 4
Salle(s) de bain : 2
Mis à jour le : 15/12/2025
Réf. annonce : 497317
Descriptif de l'annonce
A LE THORONET sur un terrain de 1500 m², VILLAS PRISME vous propose de réaliser votre projet de construction de maison individuelle d'une surface de 115 m² habitables avec 4 chambres.
Avec VILLAS PRISME, vous pouvez personnaliser votre projet de maison sur mesure :
- Plan et distribution
- Système de chauffage au choix
- Prestations et équipements selon vos souhaits : carrelages, faïence, menuiseries, salles de bains...
- Mode constructif et matériaux selon les normes en vigueur
Demandez une étude gratuite et personnalisée de votre projet de construction !