Vente Terrain + Maison LE BRUSQUET
Annonce
Prix : 253 578 €
Ville : LE BRUSQUET (04420) - Alpes-de-Haute-Provence
Superficie : 710 m²
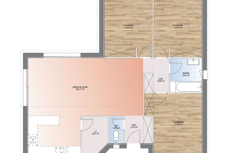
Nombre de pièces : 5
Nombre de chambres : 3
Salle(s) de bain : 1
Mis à jour le : 30/01/2026
Réf. annonce : 495712
Descriptif de l'annonce
Vous êtes intéressé par ce bien ?
Nous contacter
Agence :
VILLAS PRISME
124 Boulevard du Maréchal Juin
04100 Manosque
Tél. : 06 18 73 06 13