Annonce
Prix :
378 500 €
Ville : LAURIS
(84360) - Vaucluse
Superficie : 752 m²
Nombre de pièces : 5
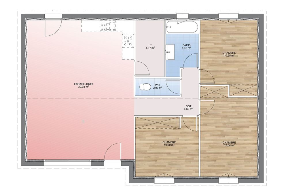
Nombre de chambres : 3
Salle(s) de bain : 1
Mis à jour le : 28/03/2026
Réf. annonce : 502692
Descriptif de l'annonce
A LAURIS sur un terrain de 752 m², VILLAS PRISME vous propose de réaliser votre projet de construction de maison individuelle d'une surface de 88 m² habitables avec 3 chambres.
Avec VILLAS PRISME, vous pouvez personnaliser votre projet de maison sur mesure :
- Plan et distribution
- Système de chauffage au choix
- Prestations et équipements selon vos souhaits : carrelages, faïence, menuiseries, salles de bains...
- Mode constructif et matériaux selon les normes en vigueur
Informations du terrain : Niché en pleine campagne, ce terrain plat viabilisé et ensoleillé de 752 m2 vous permettra de bâtir la maison de vos rêves
Demandez une étude gratuite et personnalisée de votre projet de construction !