Annonce
Prix :
443 000 €
Ville : LA BOUILLADISSE
(13720) - Bouches-du-Rhône
Superficie : 599 m²
Nombre de pièces : 5
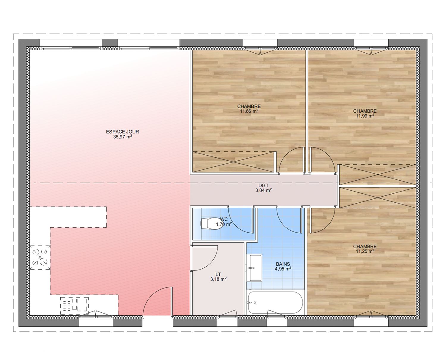
Nombre de chambres : 3
Salle(s) de bain : 1
Mis à jour le : 13/12/2025
Réf. annonce : 493860
Descriptif de l'annonce
A LA BOUILLADISSE sur un terrain de 599 m², VILLAS PRISME vous propose de réaliser votre projet de construction de maison individuelle d'une surface de 85 m² habitables avec 3 chambres.
Avec VILLAS PRISME, vous pouvez personnaliser votre projet de maison sur mesure :
- Plan et distribution
- Système de chauffage au choix
- Prestations et équipements selon vos souhaits : carrelages, faïence, menuiseries, salles de bains...
- Mode constructif et matériaux selon les normes en vigueur
Informations du terrain : A vendre à la bouilladisse terrain 599 m2dans le très recherché quartier des gorguettes parfautement orienté plein sud.
Sa forme idéale permet la construction d une maison de plain pied
Demandez une étude gratuite et personnalisée de votre projet de construction !