Annonce
Prix :
460 228 €
Ville : LA BOUILLADISSE
(13720) - Bouches-du-Rhône
Superficie : 1000 m²
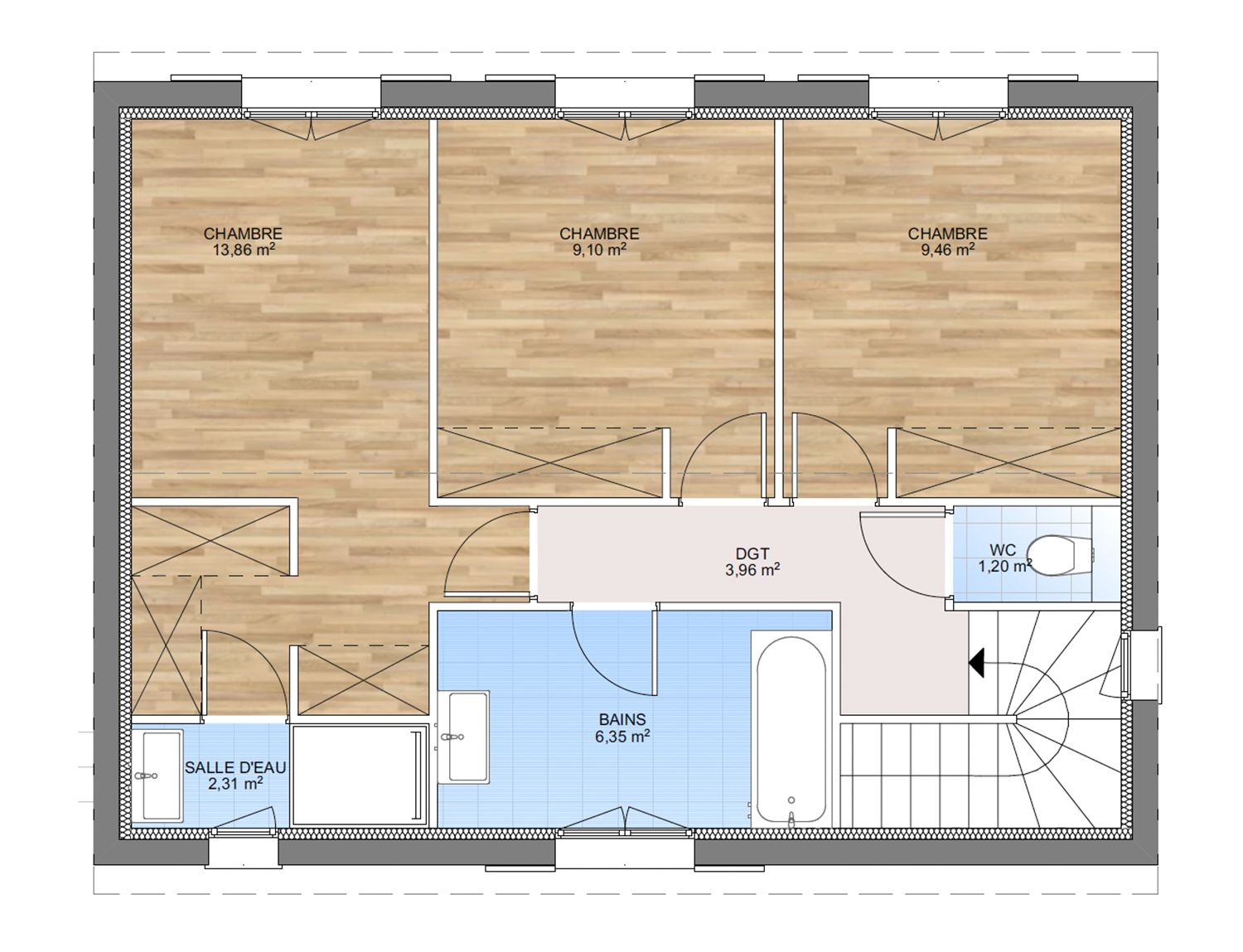
Nombre de pièces : 5
Nombre de chambres : 3
Salle(s) de bain : 2
Mis à jour le : 11/12/2025
Réf. annonce : 497168
Descriptif de l'annonce
A LA BOUILLADISSE sur un terrain de 1000 m², VILLAS PRISME vous propose de réaliser votre projet de construction de maison individuelle d'une surface de 95 m² habitables avec 3 chambres.
idéalement situé sur la commune de la BOUILLADISSE, au calme, plein sud.
Prix global: 460228€ VIABILITES INCLUSES
Contact: A.QUESADA: 06.63.02.26.17
Avec VILLAS PRISME, vous pouvez personnaliser votre projet de maison sur mesure :
- Plan et distribution
- Système de chauffage au choix
- Prestations et équipements selon vos souhaits : carrelages, faïence, menuiseries, salles de bains...
- Mode constructif et matériaux selon les normes en vigueur
Demandez une étude gratuite et personnalisée de votre projet de construction !