Annonce
Prix :
473 000 €
Ville : GREASQUE
(13850) - Bouches-du-Rhône
Superficie : 980 m²
Nombre de pièces : 5
Nombre de chambres : 3
Salle(s) de bain : 2
Mis à jour le : 26/04/2026
Réf. annonce : 511519
Descriptif de l'annonce
PROJET TOUT COMPRIS MAISON + TERRAIN + NOTAIRE + FRAIS ANNEXES
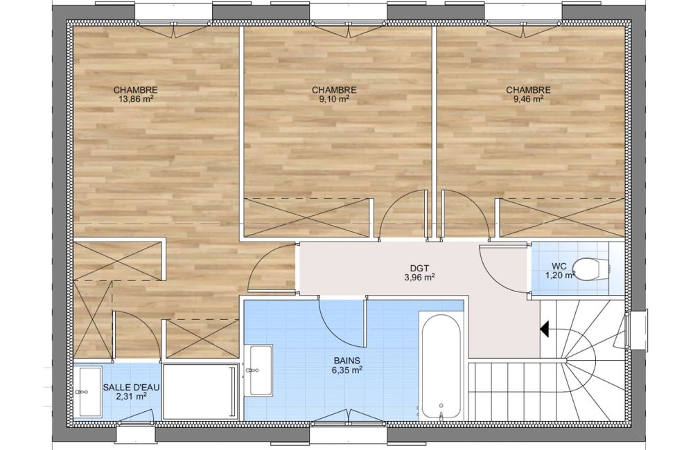
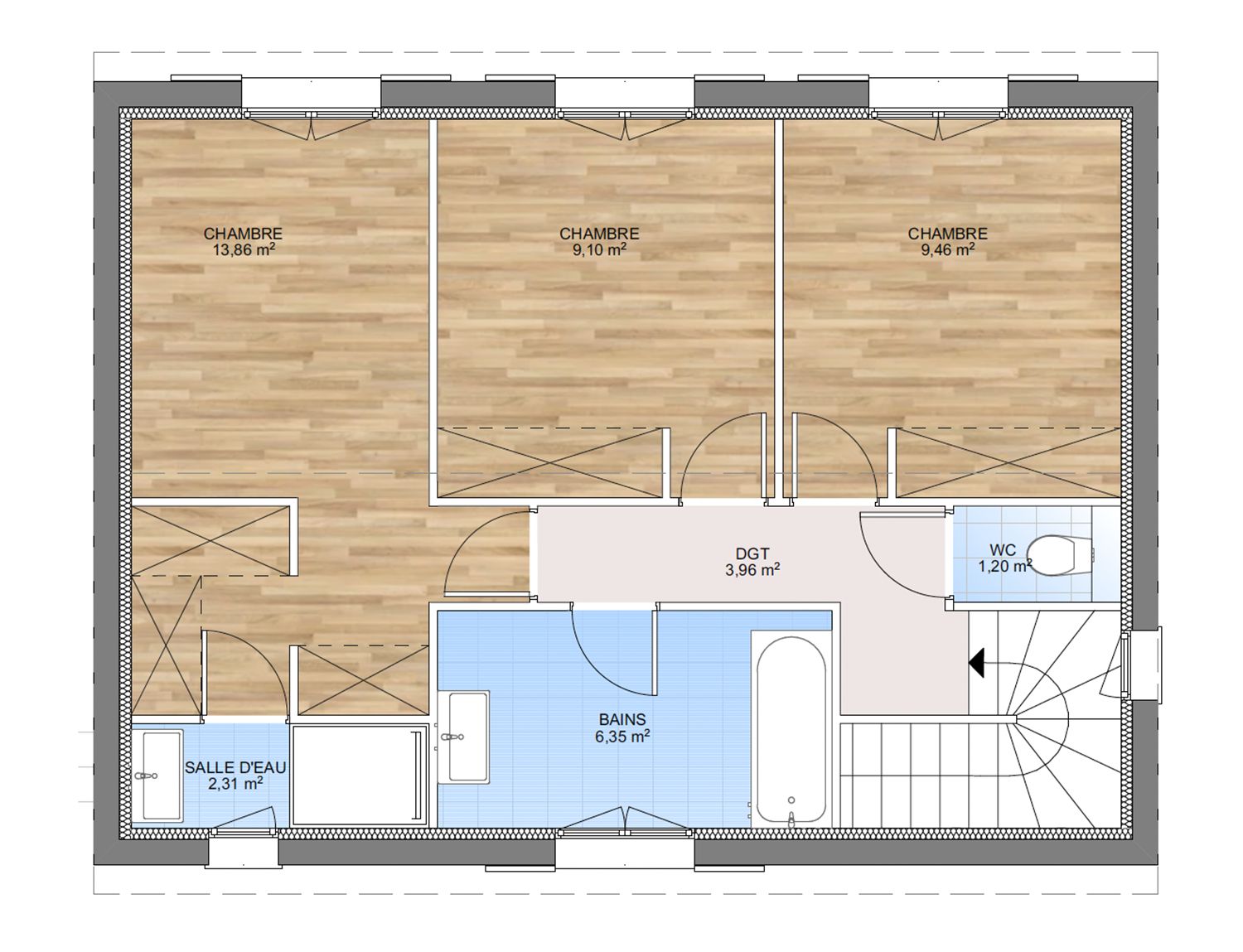
A GREASQUE sur un terrain de 980 m², VILLAS PRISME vous propose de réaliser votre projet de construction de maison individuelle d'une surface de 95 m² habitables avec 3 chambres.
Avec VILLAS PRISME, vous pouvez personnaliser votre projet de maison sur mesure :
- Plan et distribution
- Système de chauffage au choix
- Prestations et équipements selon vos souhaits : carrelages, faïence, menuiseries, salles de bains...
- Mode constructif et matériaux selon les normes en vigueur
Informations du terrain : GREASQUE
A SAISIR !
Ce terrain de 980 m2 offre un potentiel exceptionnel pour réaliser la maison de vos rêves.
Bien que situé en bord de route, il présente de nombreux atouts ; une grande surface, idéale pour un projet familial et un cadre qui reste agréable malgré la proximité de la route.
Issue d'un détachement de parcelle nous sommes hors lotissement sans mitoyenneté et sans vis à vis.
Terrain arboré
Demandez une étude gratuite et personnalisée de votre projet de construction !