Annonce
Prix :
590 000 €
Ville : GARDANNE
(13120) - Bouches-du-Rhône
Superficie : 850 m²
Nombre de pièces : 5
Nombre de chambres : 3
Salle(s) de bain : 2
Mis à jour le : 26/04/2026
Réf. annonce : 511456
Descriptif de l'annonce
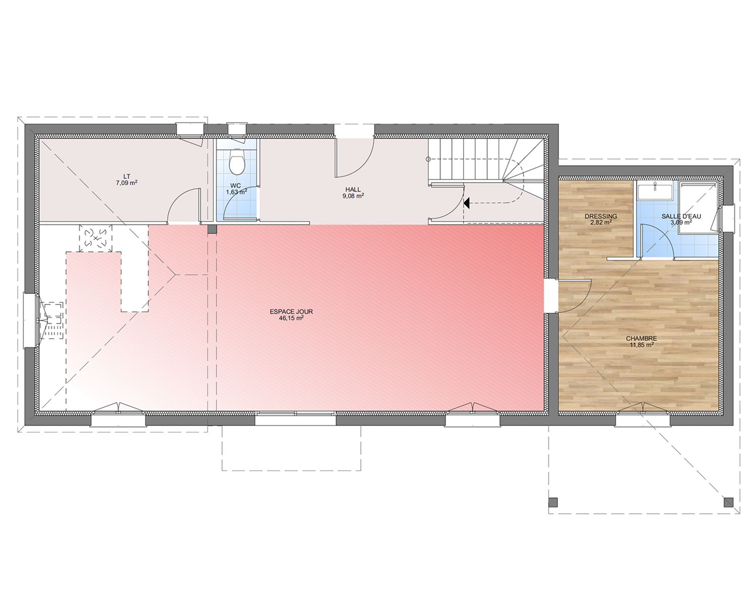
A GARDANNE sur un terrain de 850 m², VILLAS PRISME vous propose de réaliser votre projet de construction de maison individuelle d'une surface de 120 m² habitables avec 3 chambres.
Avec VILLAS PRISME, vous pouvez personnaliser votre projet de maison sur mesure :
- Plan et distribution
- Système de chauffage au choix
- Prestations et équipements selon vos souhaits : carrelages, faïence, menuiseries, salles de bains...
- Mode constructif et matériaux selon les normes en vigueur
Informations du terrain : GARDANNE entre Aix en Provence et Marseille
Découvrez ce magnifique terrain de 850 m2 idéalement situé pour profitez d'un cadre de vie aussi pratique qu'agréable
Ici on profite de la douceur du sud : le marché animé 3 fois par semaine, les ballades en garigues dans nos collines et les paysage unique de la St Victoire que l'on aperçois
Ce terrain plat et viabilisé offre la possibilité de réaliser une maison de plus de 200 m2 habitable selon votre projet
Belle opportunité pour construire une maison familiale et spacieuse
Demandez une étude gratuite et personnalisée de votre projet de construction !