Annonce
Prix :
654 000 €
Ville : GARDANNE
(13120) - Bouches-du-Rhône
Superficie : 800 m²
Nombre de pièces : 6
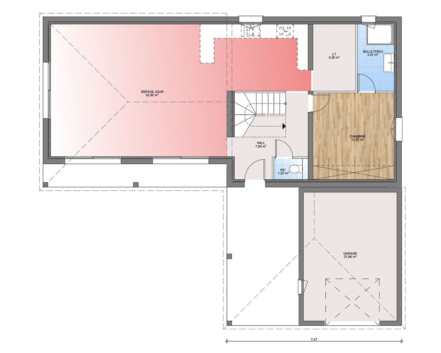
Nombre de chambres : 4
Salle(s) de bain : 2
Mis à jour le : 27/12/2025
Réf. annonce : 493914
Descriptif de l'annonce
A GARDANNE sur un terrain de 800 m², VILLAS PRISME vous propose de réaliser votre projet de construction de maison individuelle d'une surface de 125 m² habitables avec 4 chambres.
Avec VILLAS PRISME, vous pouvez personnaliser votre projet de maison sur mesure :
- Plan et distribution
- Système de chauffage au choix
- Prestations et équipements selon vos souhaits : carrelages, faïence, menuiseries, salles de bains...
- Mode constructif et matériaux selon les normes en vigueur
Informations du terrain : Merveilleux terrain EN CAMPAGNE PLEIN SUD EMPRISE AU SOL IMPORTANTE SANS NUISANCE quartier TRES RECHERCHE 800 m 2
Demandez une étude gratuite et personnalisée de votre projet de construction !