Annonce
Prix :
424 000 €
Ville : FUVEAU
(13710) - Bouches-du-Rhône
Superficie : 340 m²
Nombre de pièces : 5
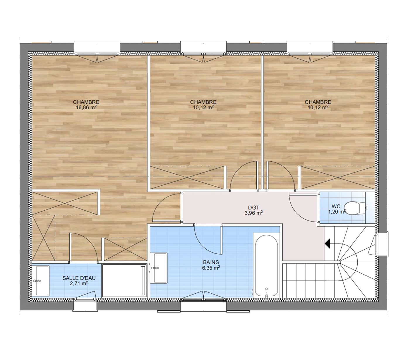
Nombre de chambres : 3
Salle(s) de bain : 2
Mis à jour le : 24/10/2025
Réf. annonce : 469271
Descriptif de l'annonce
NOUVEAUX PROJETS SUR FUVEAU !
VILLAS PRISME AUBAGNE vous propose votre VILLA DE 105m2 habitable 3 chambres sur un terrain de 340 m² viabilisé, plat, ensoleillé au CALME sur la jolie commune de Fuveau.
Prix: 424000€
CONTACT: PH.QUESADA: 06.60.97.36.26 ou A.QUESADA: 06.63.02.26.17
Avec VILLAS PRISME, vous pouvez personnaliser votre projet de maison sur mesure :
- Plan et distribution
- Système de chauffage au choix
- Prestations et équipements selon vos souhaits : carrelages, faïence, menuiseries, salles de bains...
- Mode constructif et matériaux selon les normes en vigueur
Demandez une étude gratuite et personnalisée de votre projet de construction !