Annonce
Prix :
298 145 €
Ville : FORCALQUIER
(04300) - Alpes-de-Haute-Provence
Superficie : 700 m²
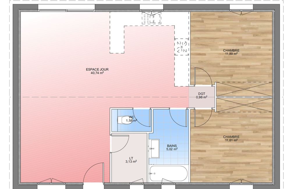
Nombre de pièces : 4
Nombre de chambres : 2
Salle(s) de bain : 1
Mis à jour le : 30/01/2026
Réf. annonce : 277810
Descriptif de l'annonce
A FORCALQUIER sur un terrain de 700 m², VILLAS PRISME vous propose de réaliser votre projet de construction de maison individuelle d'une surface de 75 m² habitables avec 2 chambres.
Avec VILLAS PRISME, vous pouvez personnaliser votre projet de maison sur mesure :
- Plan et distribution
- Système de chauffage au choix
- Prestations et équipements selon vos souhaits : carrelages, faïence, menuiseries, salles de bains...
- Mode constructif et matériaux selon les normes en vigueur
Informations du terrain : Quartier résidentiel et calme. Terrain arboré.
Demandez une étude gratuite et personnalisée de votre projet de construction !