Annonce
Prix :
371 430 €
Ville : FONTVIEILLE
(13990) - Bouches-du-Rhône
Superficie : 462 m²
Nombre de pièces : 5
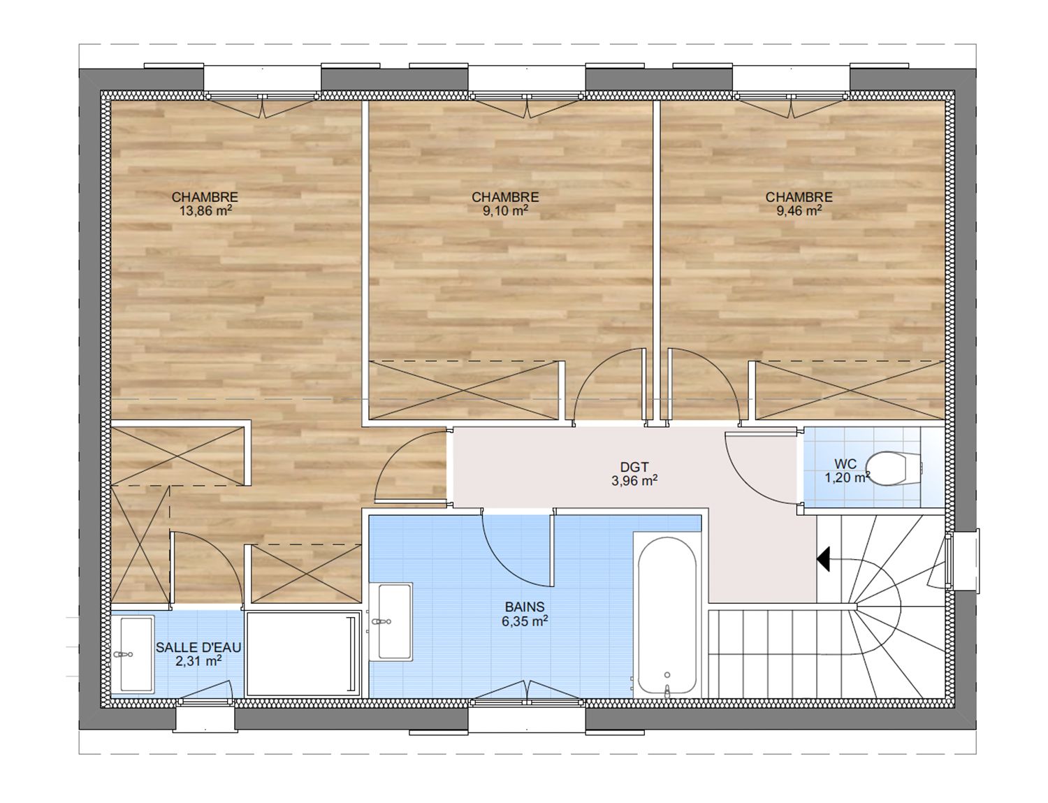
Nombre de chambres : 3
Salle(s) de bain : 2
Mis à jour le : 27/12/2025
Réf. annonce : 492464
Descriptif de l'annonce
A FONTVIEILLE sur un terrain de 462 m², VILLAS PRISME vous propose de réaliser votre projet de construction de maison individuelle d'une surface de 95 m² habitables avec 3 chambres.
Avec VILLAS PRISME, vous pouvez personnaliser votre projet de maison sur mesure :
- Plan et distribution
- Système de chauffage au choix
- Prestations et équipements selon vos souhaits : carrelages, faïence, menuiseries, salles de bains...
- Mode constructif et matériaux selon les normes en vigueur
Informations du terrain : PLAT - AU CALME ABSOLU - VIABLISE - ENSOLEILLE
Demandez une étude gratuite et personnalisée de votre projet de construction !