Annonce
Prix :
590 000 €
Ville : EGUILLES
(13510) - Bouches-du-Rhône
Superficie : 400 m²
Nombre de pièces : 5
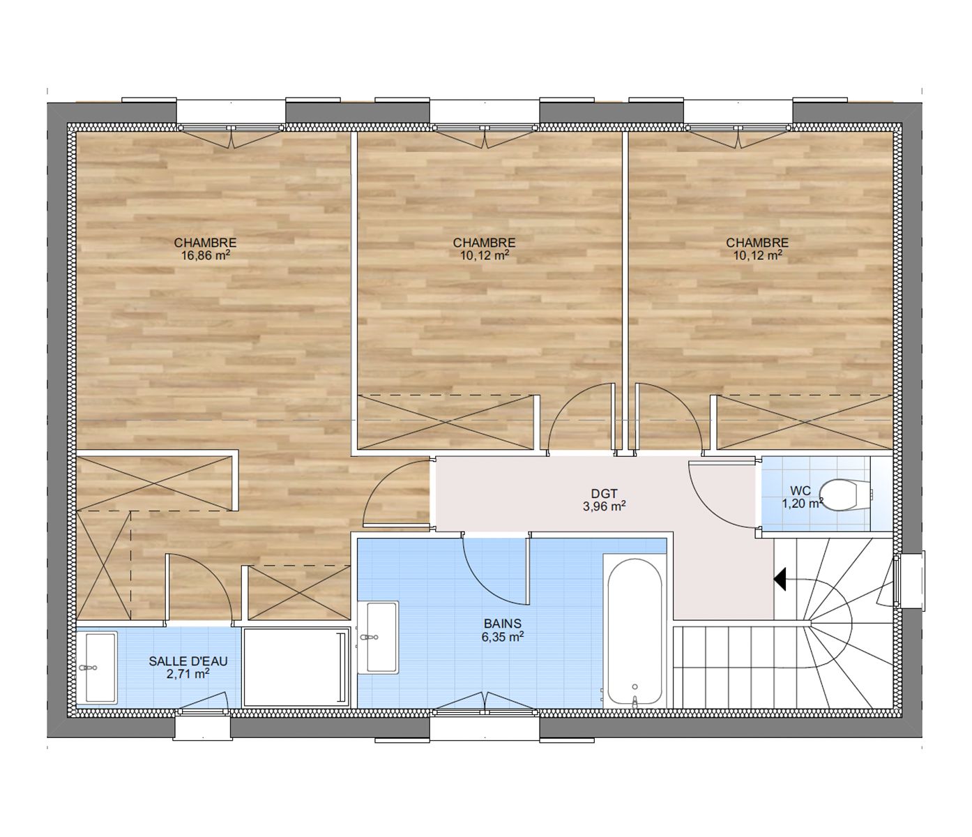
Nombre de chambres : 3
Salle(s) de bain : 2
Mis à jour le : 31/01/2026
Réf. annonce : 506148
Descriptif de l'annonce
A EGUILLES sur un terrain de 400 m², VILLAS PRISME vous propose de réaliser votre projet de construction de maison individuelle d'une surface de 100 m² habitables avec 3 chambres et piscine.
Avec VILLAS PRISME, vous pouvez personnaliser votre projet de maison sur mesure :
- Plan et distribution
- Système de chauffage au choix
- Prestations et équipements selon vos souhaits : carrelages, faïence, menuiseries, salles de bains...
- Mode constructif et matériaux selon les normes en vigueur
Informations du terrain : - Plein sud
- Proximité centre
Demandez une étude gratuite et personnalisée de votre projet de construction !