Annonce
Prix :
345 000 €
Ville : CARNOULES
(83660) - Var
Superficie : 558 m²
Nombre de pièces : 5
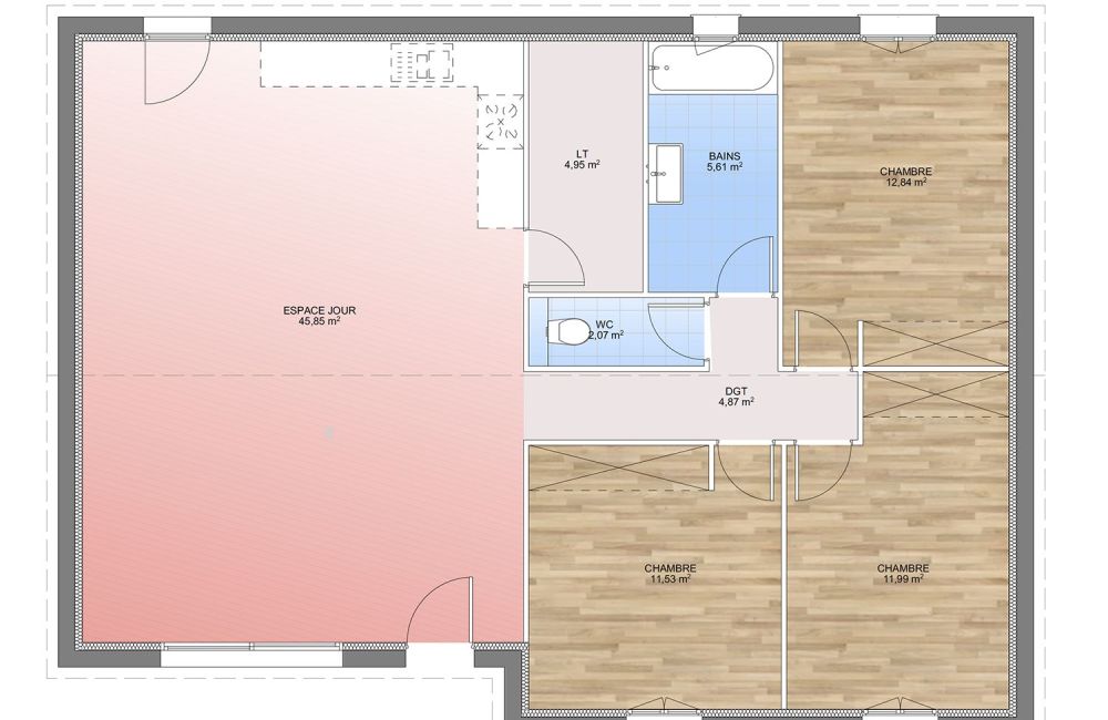
Nombre de chambres : 3
Salle(s) de bain : 1
Mis à jour le : 02/02/2026
Réf. annonce : 506474
Descriptif de l'annonce
A CARNOULES sur un terrain de 558 m², VILLAS PRISME vous propose de réaliser votre projet de construction de maison individuelle d'une surface de 99 m² habitables avec 3 chambres.
Avec VILLAS PRISME, vous pouvez personnaliser votre projet de maison sur mesure :
- Plan et distribution
- Système de chauffage au choix
- Prestations et équipements selon vos souhaits : carrelages, faïence, menuiseries, salles de bains...
- Mode constructif et matériaux selon les normes en vigueur
Informations du terrain : entièrement viabilisé
proche de tous les accès et du centre village
rare sur le secteur
Demandez une étude gratuite et personnalisée de votre projet de construction !