Annonce
Prix :
444 523 €
Ville : AUBAGNE
(13400) - Bouches-du-Rhône
Superficie : 510 m²
Nombre de pièces : 5
Nombre de chambres : 3
Salle(s) de bain : 1
Mis à jour le : 02/02/2026
Réf. annonce : 503604
Descriptif de l'annonce
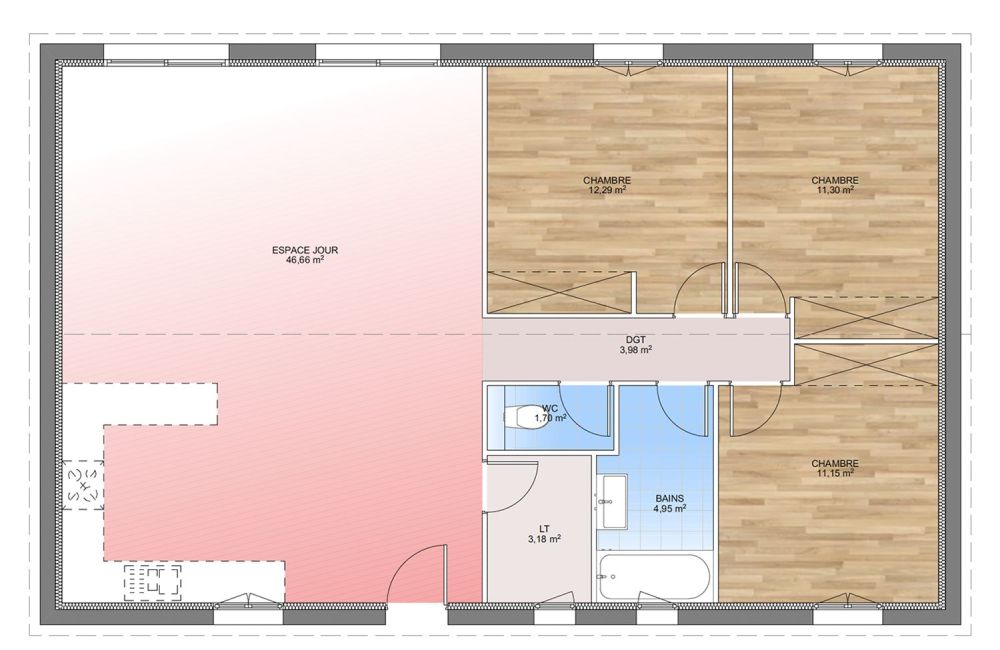
A AUBAGNE sur un terrain de 510 m², VILLAS PRISME vous propose de réaliser votre maison de PLAIN PIED d'une surface de 95 m² habitables avec 3 chambres.
TERRAIN VIABILISE/ AU CALME / PLEIN SUD
Prix: 444523€
Contact: A.QUESADA : 06.63.02.26.17
Avec VILLAS PRISME, vous pouvez personnaliser votre projet de maison sur mesure :
- Plan et distribution
- Système de chauffage au choix
- Prestations et équipements selon vos souhaits : carrelages, faïence, menuiseries, salles de bains...
- Mode constructif et matériaux selon les normes en vigueur
Demandez une étude gratuite et personnalisée de votre projet de construction !