Annonce
Prix :
570 000 €
Ville : AIX-EN-PROVENCE
(13100) - Bouches-du-Rhône
Superficie : 569 m²
Nombre de pièces : 6
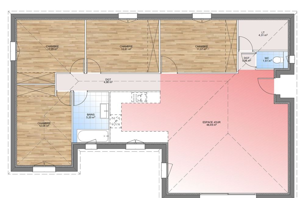
Nombre de chambres : 4
Salle(s) de bain : 1
Mis à jour le : 26/04/2026
Réf. annonce : 504589
Descriptif de l'annonce
A AIX-EN-PROVENCE sur un terrain de 569 m², VILLAS PRISME vous propose de réaliser votre projet de construction de maison individuelle d'une surface de 110 m² habitables avec 4 chambres.
Avec VILLAS PRISME, vous pouvez personnaliser votre projet de maison sur mesure :
- Plan et distribution
- Système de chauffage au choix
- Prestations et équipements selon vos souhaits : carrelages, faïence, menuiseries, salles de bains...
- Mode constructif et matériaux selon les normes en vigueur
Informations du terrain : PLAT -BONNE EXPOSITION -ENTIÈREMENT VIABILISE-PROCHE TRANSPORT EN COMMUN
Demandez une étude gratuite et personnalisée de votre projet de construction !